Waschtisch-Material

Mineraltek

50 Basisfarben, fugenlos aus einem Stück gegossen. Mineraltek ist das Material für alle, die Farbe als Gestaltungsmittel einsetzen wollen — von Graphitschwarz bis Altrosa.

Mineraltek: Das Material

50 Basisfarben — mehr als jedes andere Waschtischmaterial. Mineraltek ist das Material, das Farbe ernst nimmt: von Graphitschwarz über Salbeigrün und Altrosa bis zu Betonoptik und Lava-Struktur. Während Ocritech, Corian und SolidTek nur in Weiß erhältlich sind, öffnet Mineraltek das gesamte Farbspektrum. Ein Waschtisch in Ocra, in Bruma, in Salvia — das sind Entscheidungen, die ein Bad unverwechselbar machen. In der glänzenden Variante reflektiert die Oberfläche das Licht, in der matten schluckt sie es. Mineraltek ist das Material für alle, die am Waschtisch eine Farbaussage treffen wollen.

Mineraltek wird im Gussverfahren hergestellt — durchgefärbt, fugenlos aus einem Stück. Die Oberfläche ist glatt und im Alltag pflegeleicht. Die Robustheit liegt im Mittelfeld: härter als Ocritech, weicher als Gress oder Glas. Kratzer auf dunklen, matten Oberflächen werden schneller sichtbar als auf hellen, glänzenden. Einschränkung: Haarfärbemittel und Aceton können Spuren hinterlassen — sofort abwischen. Die Sondervarianten Concrete (Betonoptik mit rauer Struktur) und Lava (vulkanische Textur) erweitern das Programm um haptische Dimensionen. Das Becken bleibt trotz der strukturierten Plattenoberfläche glatt — für einfache Pflege im Alltag.

Mineraltek wird in Breiten gefertigt. Die 50 Basisfarben sind in allen Serien kombinierbar — der gleiche Farbton kann als Waschtisch und als Möbelfront gewählt werden oder bewusst kontrastieren. Für Bäder, in denen der Waschtisch das farbgebende Element sein soll — statt Fliese oder Wand — ist Mineraltek das richtige Material.

Mineraltek — Oberfläche und Textur

Waschtisch-Systeme mit Mineraltek

Mineraltek ist in 3 von 3 Waschtisch-Systemen einsetzbar.

Materialeigenschaften Mineraltek

Robustheit

★★★★

Die Oberfläche ist etwas weicher als bei Keramik — das merkt man, wenn man mit etwas Hartem darüberkratzt. Kleine Kratzer lassen sich mit Autopolitur wieder auffrischen. Im normalen Alltag hält die Oberfläche aber gut mit.

Technisch

Gelcoat (1–2 mm) bei Mohs 3–4. Kratzer reparierbar mit Autopolitur — aber Gelcoat ist endlich. Deutlich unter Gress (Mohs 7–8) und Glas (Mohs 6). Hitzebeständig bis 160 °C (Trockenhitze).

Pflege

★★★★

Ein feuchtes Tuch und milde Seife — das reicht für den Alltag. Zwei Sachen sollten Sie aber meiden: Scheuermilch und Mikrofasertücher. Beides ist zu rau für die Oberfläche. Ein weiches Baumwolltuch ist die bessere Wahl.

Technisch

Gelcoat ist geschlossenporig, grundlegend fleckresistent. Scheuermittel und Mikrofasertücher erzeugen Mikrokratzer (Mohs 3–4). Empfehlung: Weiches Baumwolltuch mit pH-neutralem Reiniger.

Farben

★★★★★

50 Basisfarben — da ist für jeden Geschmack etwas dabei, von klassischem Weiß über warme Naturtöne bis hin zu Betonoptik. Die Farbe geht durch das ganze Material. Das gibt eine große Freiheit bei der Badgestaltung.

Technisch

Im Gussverfahren frei pigmentierbar und durchgefärbt. 50 Basisfarben: 2 eigene WT-Farben + 50 Lack + 18 Glaks + 5 Lava + 4 Concrete. Glanz-, Matt- und Strukturoberflächen.

Maße

★★★★★

Von 60 bis 240 cm ist alles in einem Stück möglich — Becken, Platte und Wandanschluss fugenlos gegossen.

Technisch

Gussverfahren ermöglicht beliebige Geometrien. 60–240 cm, Tiefen 40–52 cm. Fugenloser Beckenübergang.

Haarmittel

★★★★

Hier muss man ehrlich sein: Haarfarbe hinterlässt auf Mineraltek dauerhafte Flecken, die nicht mehr rausgehen. Die Beschichtung nimmt die Farbpigmente auf und gibt sie nicht wieder her. Beim Haarefärben unbedingt den Waschtisch abdecken.

Technisch

PPD polymerisiert im Polyester-Gelcoat zu unlöslichen Makromolekülen (Bandrowski-Base). Alkalischer pH (>9) öffnet Oberflächenstruktur. Nachpolieren trägt endliche Gelcoat ab — keine Dauerstrategie. Größte Schwachstelle im Materialvergleich.

Nagellack

★★★★★

Nagellack selbst lässt sich noch abwischen, aber beim Entferner wird es kritisch. Aceton hinterlässt schon nach etwa 30 Sekunden matte, stumpfe Stellen — und die bekommt man nicht mehr weg. Bitte nur acetonfreien Entferner verwenden.

Technisch

Aceton greift Gelcoat an: Ab ca. 30 Sekunden irreversible Mattierung. Gelcoat nicht durchgefärbt — Nachschleifen keine Option. Besser als Ocritech (1/5), schlechter als HPL (4/5) und Glas/Gress (5/5).

Farben

Verfügbare Farben

Mineraltek ist in 52 Farben verfügbar. Klicken Sie auf ein Muster für die Großansicht.

Mineraltek matt / hochglänzend — 2 Farben

Mineraltek GE01 Weiss Matt

Mineraltek GE01 Weiss Matt

Mineraltek GE02 Weiss Hochglanz

Mineraltek GE02 Weiss Hochglanz

Lackiert (Waschtisch) matt — 50 Farben

Lackiert (Waschtisch) L001 Weiß (Standard)

Lackiert (Waschtisch) L001 Weiß (Standard)

Lackiert (Waschtisch) L002 Reinweiß

Lackiert (Waschtisch) L002 Reinweiß

Lackiert (Waschtisch) L003 Grauweiß

Lackiert (Waschtisch) L003 Grauweiß

Lackiert (Waschtisch) L005 Perlweiß

Lackiert (Waschtisch) L005 Perlweiß

Lackiert (Waschtisch) L004 Pergamon

Lackiert (Waschtisch) L004 Pergamon

Lackiert (Waschtisch) L056 Argilla

Lackiert (Waschtisch) L056 Argilla

Lackiert (Waschtisch) L055 Sahara

Lackiert (Waschtisch) L055 Sahara

Lackiert (Waschtisch) L057 Talpa

Lackiert (Waschtisch) L057 Talpa

Lackiert (Waschtisch) L006 Lichtgrau

Lackiert (Waschtisch) L006 Lichtgrau

Lackiert (Waschtisch) L007 Seidengrau

Lackiert (Waschtisch) L007 Seidengrau

Lackiert (Waschtisch) L008 Kieselgrau

Lackiert (Waschtisch) L008 Kieselgrau

Lackiert (Waschtisch) L009 Achatgrau

Lackiert (Waschtisch) L009 Achatgrau

Lackiert (Waschtisch) L010 Platingrau

Lackiert (Waschtisch) L010 Platingrau

Lackiert (Waschtisch) L011 Signalgrau

Lackiert (Waschtisch) L011 Signalgrau

Lackiert (Waschtisch) L012 Staubgrau

Lackiert (Waschtisch) L012 Staubgrau

Lackiert (Waschtisch) L013 Steingrau

Lackiert (Waschtisch) L013 Steingrau

Lackiert (Waschtisch) L014 Betongrau

Lackiert (Waschtisch) L014 Betongrau

Lackiert (Waschtisch) L015 Mausgrau

Lackiert (Waschtisch) L015 Mausgrau

Lackiert (Waschtisch) L016 Quarzgrau

Lackiert (Waschtisch) L016 Quarzgrau

Lackiert (Waschtisch) L017 Blaugrau

Lackiert (Waschtisch) L017 Blaugrau

Lackiert (Waschtisch) L018 Basaltgrau

Lackiert (Waschtisch) L018 Basaltgrau

Lackiert (Waschtisch) L019 Graphitgrau

Lackiert (Waschtisch) L019 Graphitgrau

Lackiert (Waschtisch) L021 Beige Terra

Lackiert (Waschtisch) L021 Beige Terra

Lackiert (Waschtisch) L065 Sandstone

Lackiert (Waschtisch) L065 Sandstone

Lackiert (Waschtisch) L067 Terracotta

Lackiert (Waschtisch) L067 Terracotta

Lackiert (Waschtisch) L023 Beigegrau

Lackiert (Waschtisch) L023 Beigegrau

Lackiert (Waschtisch) L024 Terrabraun

Lackiert (Waschtisch) L024 Terrabraun

Lackiert (Waschtisch) L072 Ocra

Lackiert (Waschtisch) L072 Ocra

Lackiert (Waschtisch) L068 Rosso Aurora

Lackiert (Waschtisch) L068 Rosso Aurora

Lackiert (Waschtisch) L059M Minio

Lackiert (Waschtisch) L059M Minio

Lackiert (Waschtisch) L051 Cipria

Lackiert (Waschtisch) L051 Cipria

Lackiert (Waschtisch) L071 Mattrosa

Lackiert (Waschtisch) L071 Mattrosa

Lackiert (Waschtisch) L070 Altrosa

Lackiert (Waschtisch) L070 Altrosa

Lackiert (Waschtisch) L066 Ruggine

Lackiert (Waschtisch) L066 Ruggine

Lackiert (Waschtisch) L058 Japur

Lackiert (Waschtisch) L058 Japur

Lackiert (Waschtisch) L064 Graugrün

Lackiert (Waschtisch) L064 Graugrün

Lackiert (Waschtisch) L069 Malvengrau

Lackiert (Waschtisch) L069 Malvengrau

Lackiert (Waschtisch) L060 Salvia

Lackiert (Waschtisch) L060 Salvia

Lackiert (Waschtisch) L061 Comodoro

Lackiert (Waschtisch) L061 Comodoro

Lackiert (Waschtisch) L040 Moosgrün

Lackiert (Waschtisch) L040 Moosgrün

Lackiert (Waschtisch) L044 Blaugrün

Lackiert (Waschtisch) L044 Blaugrün

Lackiert (Waschtisch) L045 Hellblau

Lackiert (Waschtisch) L045 Hellblau

Lackiert (Waschtisch) L062 Nuvola

Lackiert (Waschtisch) L062 Nuvola

Lackiert (Waschtisch) L054 Bruma

Lackiert (Waschtisch) L054 Bruma

Lackiert (Waschtisch) L046 Pastellblau

Lackiert (Waschtisch) L046 Pastellblau

Lackiert (Waschtisch) L063 Mattblau

Lackiert (Waschtisch) L063 Mattblau

Lackiert (Waschtisch) L047 Azurblau

Lackiert (Waschtisch) L047 Azurblau

Lackiert (Waschtisch) L048 Ozeanblau

Lackiert (Waschtisch) L048 Ozeanblau

Lackiert (Waschtisch) L049 Graphitschwarz

Lackiert (Waschtisch) L049 Graphitschwarz

Lackiert (Waschtisch) L050 Tiefschwarz

Lackiert (Waschtisch) L050 Tiefschwarz

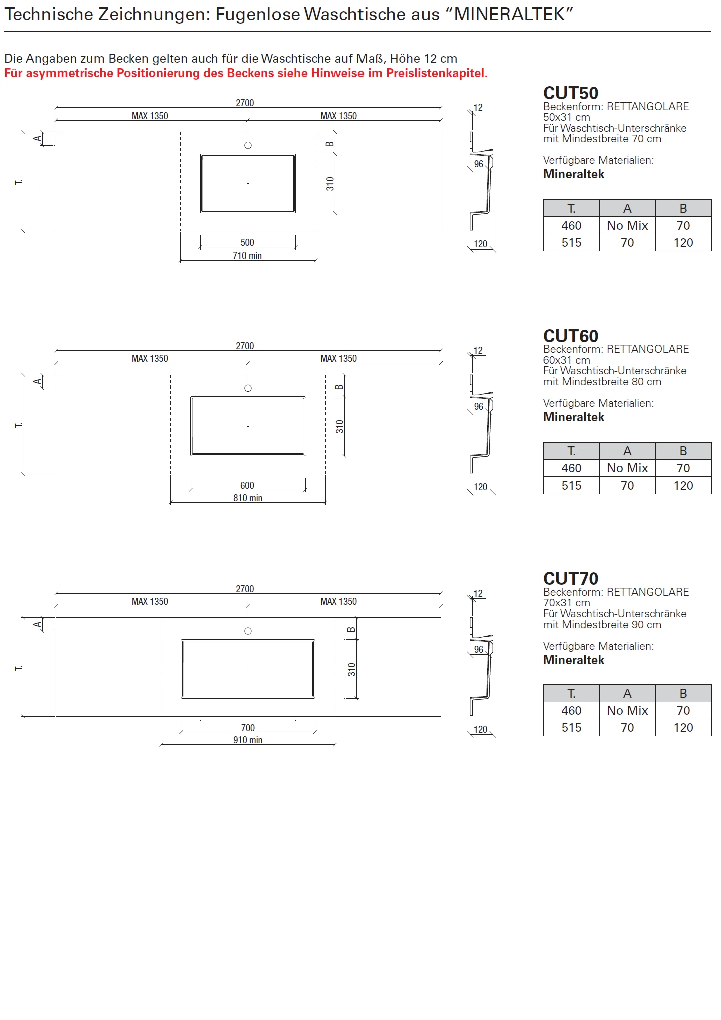
Beckenformen

Beckenformen für Mineraltek

Verfügbare Beckenformen — klicken Sie für eine größere Ansicht.

Beckenform-Skizze
Beckenform-Skizze
Beckenform-Skizze
Beckenform-Skizze
Beckenform-Skizze

Beckentypen

Verfügbare Beckentypen für Mineraltek

Beckentyp CUT

CUT

3 Beckenformen

Nächster Schritt

Mineraltek in Ihrem Waschtisch

Finden Sie passende Farbkombinationen oder starten Sie direkt Ihre Planung.

Echte Kundenstimmen

„Wir haben die Badmöbel schon seit ca. 5 Jahren und sind super zufrieden damit. Das Material des fungenlosen Waschbeckens ist sehr robust.“

★★★★★ · ekomi

„Wer einen individuellen Waschtisch haben möchte, ist hier an der richtigen Adresse. Man hat eine große Auswahl an Farben, Materialien und Preiskategorien, sodass für jedes Budget etwas dabei ist.“

★★★★★ · provenexpert

„Wir haben uns damals für Waschtische mit Sondermassen zwischen 1m und 3.5m Länge in allen 4 Bädern entschieden (weiss-matte Tecnoril Waschtische mit Schubladen-Unterschränken der Serie Young).“

★★★★★ · provenexpert

„Ich konnte tausend Fragen sellen, alle wurden fachkompetent und geduldig beantwortet.“

★★★★★ · s. · provenexpert

„Nach langer Suche bin ich endlich fündig geworden und freue mich nun auf meine Badezimmermöbel. Vor Ort kann man viele Kombinationen begutachten und sich von der Qualität überzeugen.“

★★★★★ · B. · provenexpert

„Sehr gute Beratung. Einwandfreie, pünktliche Lieferung. Produkte hochwertig und günstiger wie im Sanitärgroßhandel.“

★★★★★ · Thomas K. · provenexpert

„Eine top Beratung! Wir kamen mit unserer Vorstellung, und gingen mit einem ganz anderen Ergebnis.“

★★★★★ · provenexpert

„Es hat alles wunderbar ohne Probleme geklappt. Einfache Onlineterminvereinbarung, zügige Beratung und sofortige Bestellung, Lieferfrist wurde eingehalten und top Qualität der Ware.“

★★★★★ · H. · provenexpert

„Vor allem die Beratung durch Herr T., der das riesige Angebot auf uns individuell abgestimmt und eingeschränkt hat, um zügig die perfekte Lösung für uns zu finden, hat uns sehr zugesagt.“

★★★★★ · Franziska D. · provenexpert

„Neben einer absolut fach- und sachgerechten Beratung erfolgte eine prompte, mängellose Lieferung wie bestellt.“

★★★★★ · W. K. · provenexpert

„Während der (vorab online gebuchten) kompetenten Beratung wurde alles anschaulich am PC visualisiert. Wer einen Waschplatz sucht, wird hier auf jeden Fall fündig. Volle Empfehlung.“

★★★★★ · Frau S. · provenexpert

„Die persönliche Beratung war sehr gut. Technische und optische Details wurden gut erklärt und dargestellt. Unsere Vorstellung konnte perfekt umgesetzt werden.“

★★★★★ · Familie S. · provenexpert

„Preisleistungsverhältnis ist sehr gut. Rasche kompetente Beratung sehr freundlich.“

★★★★★ · Familie S. · provenexpert

„Hervorragende Beratung. Lieferung per Spedition mit Transport ins Haus; perfekt.“

★★★★★ · Peter G. · google

„Unglaublich viel Auswahl an Materialien, Farben und Kombinationen. Vorab kann man online bereits sehr viele Beispiele anschauen.“

★★★★★ · google

„Wir haben uns vor 7 Jahren für Waschtische mit Sondermaßen zwischen 1m und 3.5m Länge in allen 4 Bädern entschieden.“

★★★★★ · Michael F. · google

„Nach langer Suche bin ich endlich fündig geworden und freue mich nun auf meine Badezimmermöbel. Vor Ort kann man viele Kombinationen begutachten und sich von der Qualität überzeugen.“

★★★★★ · Barbara D. · google

„Gute Beratung und Planung eines Waschtischs. Viele Möglichkeiten und Zeit für die Planung. Nun haben wir ein qualitativ sehr guten Waschtisch. Lieferung hat zum vereinbarten Termin geklappt.“

★★★★★ · Horschd H. · google

„Herr T. ging direkt auf unsere Wünsche ein. Die Beratung war fair und kompetent.“

★★★★★ · Holger P. · google

„Empfehlenswert für jeden, der sein Bad ausstatten will.“

★★★★★ · Kevin K. · google

„Es hat alles wunderbar ohne Probleme geklappt. Einfache Onlineterminvereinbarung, zügige Beratung und sofortige Bestellung.“

★★★★★ · André H. · google

„Während der (vorab online gebuchten) kompetenten Beratung wurde alles anschaulich am PC visualisiert.“

★★★★★ · Elke S. · google

„Die Beratung war ausführlich und intensive . Wir hatten Gelegenheit die pros und cons diverse Bad Einrichtungen zu besprechen. Unsere Vorstellungen konnten wir realisieren.“

★★★★★ · ekomi

„Sehr schöne Badmöbel und pfiffige Beratung. Ich habe schon das zweite Bad gekauft. Der Glaswaschtisch ist zeitlos schön.“

★★★★★ · provenexpert

„Obwohl das Geschäft geschlossen hatte, bekam ich am gleichen Tag einen Termin. Die Beratung war überaus professionell. Herr T.“

★★★★★ · Herr L. · provenexpert

„Sehr gute und kompetente Beratung. Mit der 3D-Darstellung wird das gewünschte Bad sofort übersichtlich dargestellt.“

★★★★★ · provenexpert

„Gute Beratung und Mitteilung über Fertigstellung und Lieferung.“

★★★★★ · provenexpert

„Sehr kompetente Fachberatung bekommen. Ist weiter zu empfehlen.“

★★★★★ · Familie R. · provenexpert

„Sehr nette Verkäufer! Super Preis in Angebot.“

★★★★★ · Ovidiu S. · google

„Ich möchte mich recht herzlich bedanken, dass wir so unkompliziert einen neuen Griff für unseren Badschrank bekommen haben.“

★★★★★ · Andreas W. · google

„Sehr kompetente und freundliche Beratung. Herr T. hat uns zahlreiche Möglichkeiten aufgezeigt. So konnten wir unser Bad nach Wunsch gestalten.“

★★★★★ · A. · provenexpert

„Sehr gute Beratung. Alles sehr gut erläutert. Kleiner Defekt am Waschbecken wurde anstandslos komplett ausgetauscht. Ich werde Bad Direkt immer weiter empfehlen. Dankeschön!“

★★★★★ · David K. · provenexpert

„Gute professionelle Beratung mit guter Produktauswahl und vielen alternativen Möglichkeiten für die Ausstattung.“

★★★★★ · Herr S. · provenexpert

„Die Qualität der Waschbeckenplatten hatte uns der Sanitär-Fachhandel nicht angeboten (auch nicht gegen Aufpreis - es gab sie einfach nicht).“

★★★★★ · RG aus L. · provenexpert

„Wir waren sehr zufrieden und sind mit einem schicken Bad auf Maß nach Hause gegangen! Sehr zu empfehlen!“

★★★★★ · Sarah & Max G. · google

„Adäquate Beratung. Wir sind schnell zu einer Kaufentscheidung gekommen und warten gespannt auf die Lieferung.“

★★★★★ · Monika K. · google

„Lieferung kam pünktlich, unbeschadet und komplett. Beratung durch Herr T. sehr kompetent mit kreativen Vorschlägen. Auf alle unsere Änderungen wurde eingegangen.“

★★★★★ · ekomi

„Die Möbel usw. kommen per Spedition direkt aus Italien, super verpackt und termintreu. Jederzeit gerne wieder - beim nächsten Objekt oder Umbau“

★★★★★ · ekomi

„Eine top Beratung! Wir kamen mit unserer Vorstellung, und gingen mit einem ganz anderen Ergebnis.“

★★★★★ · ekomi

„Alles super. Sehr gute Beratung, faire Preise, klasse Produkt, super Qualität, einwandfreie Lieferung, alles war bestens verpackt, keine Beschädigungen und alle Details dabei. Sehr zu empfehlen !“

★★★★★ · ekomi

„Die ganze Beratung /Abwicklung / Lieferung von A-Z war super und es hat alles bestens geklappt. Der Kontakt ist freundlich und professionell. Die Badmöbel sind wunderschön.“

★★★★★ · ekomi

„Alles gut gelaufen ,Bestellung,Lieferung ok.“

★★★★★ · ekomi

„Gutes Preis/Leistung Verhältnis. Bestell und Lieferablauf passt. Kundendienst Anfragen werden zeitnahe beantwortet. Gesamtnote gut. Wir kommen wieder und empfehlen euch gerne weiter..“

★★★★★ · ekomi

„Für unser neues Badezimmer wurde uns Bad Direkt empfohlen. Diese Empfehlung können wir nun uneingeschränkt weitergeben.“

★★★★★ · ekomi

„Wir kamen mit unseren Vorstellungen, und gingen mit einem anderen Ergebnis. Wir wurden super kompetent beraten. Alles im Detail besprochen.“

★★★★★ · D. M. · google

„Alles TOP. Immer wieder gerne!“

★★★★★ · Miriam P. · google

„Für unser neues Badezimmer wurde uns Bad Direkt empfohlen. Diese Empfehlung können wir nun uneingeschränkt weitergeben.“

★★★★★ · Manfred L. · google

„Alles Super abgelaufen. Sehr kompetenter und freundlicher Verkäufer. Lieferung wie ausgemacht und die Qualität von Badmöbel ist sehr hochwertig. Würde ich jederzeit wieder bestellen.“

★★★★★ · Eduard S. · google

„Super Service, perfekte Ausführung. Freundlich, kompetent und zu unserer vollsten Zufriedenheit ausgeführt.“

★★★★★ · Elena K. · google

„sehr gute Beratung bis zur Entscheidung, auch die Lieferung war perfekt organisiert“

★★★★★ · ekomi

„Wir haben einen Waschtisch und ein Handwaschbecken mit Unterschrank erworben.Der Verkäufer hat sich sehr bemüht, auf unsere Wünsche einzugehen, war kompetent und hat uns sogar außerhalb der üblichen …“

★★★★★ · ekomi

„Positiv: Kompetente Beratung Fragen und Wünsche werden schnell und zuverlässig bearbeitet Hochwertige Ware mit guter Einbauanleitung. Einbau auch für Nichtfachleute zu bewerkstelligen.“

★★★★★ · ekomi

„Wir waren mit der Beratung sehr zufrieden. Alle Fragen wurden immer zuverlässig und prompt beantwortet.“

★★★★★ · ekomi

„Danke. Alles sehr gut. Gute Beratung, unsere Vorstellungen wurden alle umgesetzt. Lieferung ebenfalls reibungslos. Alles gute weiterhin.“

★★★★★ · ekomi

„Perfekte Beratung vor dem Kauf. Perfekte Lieferung. Perfekte Abwicklung (kleinster) Reklamation. Als Käufer wünscht man sich, dass alles so ablaufen würde. Nach Nutzung einiger Wochen: tolle Qualität!“

★★★★★ · ekomi

„Alles bestens geklappt Grosse Auswahl Super qualität“

★★★★★ · ekomi

„Auch für Nichtfachleute leicht einzubauen. Negativ: Beschränkte Auswahl“

★★★★★ · ekomi

„Sehr guter Kontakt, sehr gute Abwicklung“

★★★★★ · ekomi

„Sehr kompetent, nur due Farbauswahl aus dem Internet ist keine Glückliche Lösung“

★★★★★ · ekomi

„Beratung und Produkt sehr gut, Lieferzeit befriedigend. Empfehlenswert.“

★★★★★ · ekomi

„Wir waren anfangs skeptisch und nicht wirklich überzeugt unsere Badmöbel von einem Onlineshop zu kaufen. Wir sind trotzdem hingefahren, haben innerhalb von ca.“

★★★★★ · ekomi

„Nach einer top Beratung vor Ort, freuen wir uns jetzt täglich über unsere individuelle, maßgefertigte Waschtischlösung in einer super Qualität.“

★★★★★ · ekomi

„Für uns war es wichtig einen farbigen ( Resedagrün) Waschtisch zu bekommen. Das gab es nur bei Ihnen, denn die meisten Bäder sind in weiß.“

★★★★★ · ekomi

„Ich kann Bad Direkt mit gutem Gewissen weiterempfehlen. Nach langem Suchen hab ich bei Bad Direkt meinen kompromisslosen Waschtisch endlich gefunden . Meinen Wünschen wurde voll und ganz entsprochen.“

★★★★★ · ekomi

„sehr gute Qualität und pünktliche Lieferung. Gerne wieder.“

★★★★★ · ekomi

„Sehr gute Beratung und Produkte.“

★★★★★ · Michael T. · google

„Kompetente Beratung, bei der das gesamte Objekt im Mittelpunkt steht. Es erfolgen auch Designvorschläge für die Gestaltung des Raumes. Unkomplizierte Abwicklung bei Vertragsabschluss.“

★★★★★ · ekomi

„Sehr kompetente Beratung. Preis, Leistung stimmen. Qualität tadellos. Bei Lieferung trotz schwerer Packstücke nur 1 Fahrer. War beim Abladen auf fremde Hilfe angewiesen.“

★★★★★ · ekomi

„Alles gut geklappt. Kann ich nur empfehlen“

★★★★★ · ekomi

„Sehr strukturierter und transparenter Internetauftritt (Produkte inkl. Preis); dabei bleibt viel individueller Gestaltungsspielraum.“

★★★★★ · ekomi

„Kompetent Beratung, Lieferzeit wie angekündigt.“

★★★★★ · ekomi

„jederzeit gerne wieder. alles ohne Probleme abgelaufen.“

★★★★★ · ekomi

„Bad Direkt ist perfekt. Tolle ideenreiche Beratung. Man nimmt sich Zeit für den Kunden. Lieferung, Installation ... alles problemlos. Unser Bad ist das Highlight in der neuen Wohnung!“

★★★★★ · ekomi

„sehr gute kompetente Beratung, sehr gutes Preis- Leistungsverhältnis, sehr gute Qualität der Ware, gerne immer wieder“

★★★★★ · ekomi

„Wir sind sehr zufrieden! Anlieferung war gut. Die Schränke sind sehr schön und mit der Qualität sind wir auch voll zufrieden. Danke“

★★★★★ · ekomi

„Sehr gute Qualität der Ware. Und wenn die Lieferbedingugen noch verbessert werden könten(genauere Terminierung, Ware nicht nur am Strassenrand abliefern) wäre auch der Service hier noch besser.“

★★★★★ · ekomi

„Top Beratung , top Ware. Sehr zu empfehlen“

★★★★★ · ekomi

„Hatten eine Massfertigung als Waschtisch mit Glas-Waschbecken benötigt.Die Ware kam in einwandfreiem Zustand, Anbau problemlos und wir freuen uns jeden Tag über unsere Entscheidung - …“

★★★★★ · ekomi

„Tolle Badmöbel, sehr hochwertig. Die Direktlieferung aus Italien lief etwas holperig und kleine Mängel wurden nicht nachgebessert, Kundenservice NACH Lieferung schlecht.“

★★★★★ · ekomi

„Alles Bestens, wir würden jederzeit wieder bei Bad direkt bestellen“

★★★★★ · ekomi

„Durch Zufall auf Bad Direkt gestoßen.Super Tipps und Ideen von und erhalten. Bestellung und Lieferung problemlos und genau auf vereinbarten Termin die Ware erhalten.“

★★★★★ · ekomi

„Ich bin rundum zufrieden, angefangen von der Planung und Kommunikation bis hin zur Lieferung. Der Termin wurde eingehalten, alles pünktlich direkt vom Hersteller ausgeliefert.“

★★★★★ · ekomi

„Umfangreiche Angebotspalette - kompetente und freundliche Beratung - Einhaltung der Lieferfrist sowie gutes Preis- Leistungsverhältnis.“

★★★★★ · ekomi

„gute Beratung, sehr schöne Barmöbel, schnelle Lieferung.“

★★★★★ · ekomi

„Wir sind sehr zufrieden mit unserem wundervollen Waschtisch von BadDirekt. Immer eine freundliche Beratung erhalten, bei jeder Nachfrage.“

★★★★★ · ekomi

„Sehr entspannt ,da wir bei 3 Waschtischen und Schränken keine Reklamation vornehmen mussten und wir eine „ganzeinheitliche“ Beratung vor Ort und später ebenso gut bei der telefonischen Bestellung …“

★★★★★ · ekomi

„Wir haben schon den 2. Waschtisch bei Bad Direkt gekauft und waren immer topp zufrieden. Super Qualität ! Absolute Kaufempfehlung!“

★★★★★ · ekomi

„Erste telefonische Kontaktaufnahme etwas holprig, da der betreffende Mitarbeiter offenbar nicht nur für die telefonischen Anfragen sondern auch für die persönliche Kundenbetreuung im Hause zuständig …“

★★★★★ · ekomi

„Sehr guter Kontakt, tolle Ware, schnell und direkt preiswert geliefert. Jederzeit wieder, Danke.“

★★★★★ · ekomi

„Gute Qualität Lieferzeit exakt“

★★★★★ · ekomi

„Hat alles bestens geklappt. Gute Beratung, Liefertermin eingehalten, qualitativ absolut top. Ich würde wieder bei BadDirekt einkaufen!!!“

★★★★★ · ekomi

„Die Ausstelllungsräume könnten etwas übersichtlicher sein und mehr veschiedene Schranktypen aufgebaut sein. Beratung gut, Lieferung terminGerecht .“

★★★★★ · ekomi

„bisher ausgeführte Bestellungen verliefen problemlos und ohne Beanstandungen. Zu verbessern wäre der Umgang mit Mängeln und Ablauf der Garantiezeit, erst recht bei Materialfehler.“

★★★★★ · ekomi

„Wir haben nach längerer intensiver Suche hier unsere Badmöbel gefunden. Die Beratung war gut ,die Lieferung der Möbel erfolgte direkt vor die Haustür.“

★★★★★ · ekomi

„Und absolut individuelle Beratung durch Herr T., sehr anschaulich.“

★★★★★ · google

„Hochwertige Badmöbel, schneller und guter Kontakt, waren sehr zufrieden.“

★★★★★ · Alexandra E. · google

„Kompetente Beratung und faire Preise. Sehr viele Konfigurationsmöglichkeiten für Waschbecken, angefangen beim Material über Farbe, Platzierung und Form.“

★★★★★ · Philipp · google

„Sehr gute und freundliche Beratung. Man findet für jedes Bad das passende Möbel.“

★★★★★ · Dennis K. · google

„Reaktionszeit, Lieferung sowie Qualität der Möbel ist TOP! Würde jederzeit wieder bei Bad Direkt bestellen!“

★★★★★ · Beatrix H. · google

„Super Service, tolle Qualität und extrem hilfsbereit. Ich kann Bad Direkt nur wärmstens weiter empfehlen! Herr T. war immer für uns ansprechbar.“

★★★★★ · Lutz R. · google

„Beratung, Auswahl, Abwicklung alles perfekt. Top Ware! 100% Weiterempfehlung!“

★★★★★ · Heinz S. · google

„Wir waren mit der Beratung der Fa. Bad-Direkt sehr zufrieden. Herr T. hat uns bei unseren individuellen Wünschen und Vorstellungen unterstützt.“

★★★★★ · Peter S. · google

„Sehr gute Beratung, sehr gute und fertige Produkte in allen Preisklassen, vernünftiges Preis-Leistungsverhältnis. Guter Service bei Nachbestellung. Kann Schnur empfehlen.“

★★★★★ · ekomi

„Ausgezeichnetes Produkt, herausragende Beratung und reibungslose Anlieferung“

★★★★★ · ekomi

„Die Terminabsprache per Telefon war sehr einfach. Der Geschäftsführer hat uns persönlich und super kompetent beraten.“

★★★★★ · ekomi

„Sehr kompetente, gute Beratung durch Herr P.. Badmöbel haben eine super Qualität. Kann es wirklich nur weiterempfehlen!!“

★★★★★ · ekomi

„Preis OK, Ware OK, Lieferung OK und das ganze auf Rechnung. Was will man mehr.“

★★★★★ · ekomi

„Top Service, korrekte Abwicklung.“

★★★★★ · ekomi

„Zustellung, Abwicklung und Qualität bestens.“

★★★★★ · ekomi

„Sehr gute Beratung. Einwandfreie, pünktliche Lieferung. Produkte hochwertig und günstiger wie im Sanitärgroßhandel.“

★★★★★ · ekomi

„Anfangs schien mir die Sache etwas kompliziert um hier zu bestellen, eventuell Skizze beifügen und die richtigen Bestellnummer herauszufinden.“

★★★★★ · ekomi

„Haben das 2.Mal Ware bestellt und erhalten. Diese liegt im oberen Preissegment, ist jedoch auch exklusiv. Die erste Lieferung war 2013. Die 2. 2017.“

★★★★★ · ekomi

„alles gut gelaufen, große Auswahl, Lieferung wie geplant, Freundlichkeit könnte noch größer geschrieben werden“

★★★★★ · ekomi

„tolle Beratung, alles super gelaufen, danke“

★★★★★ · ekomi

„Für unser schmales Bad benötigten wir einen Waschtisch mit geringer Tiefe, der aber trotzdem gut nutzbar sein sollte (also keinen Gästebad-Waschtisch).“

★★★★★ · ekomi

„Sehr fundierte Beratung, die so einfach einzigartig ist. Der normale Sanitärfachhandel kann diesbezüglich in der Regel nicht mithalten.“

★★★★★ · ekomi

„sehr kompetente Beratung... unkomplizierte Abwicklung... ein sehr sehr gutes Produkt... wir sind mehr als nur zufrieden immer wieder gerne...“

★★★★★ · ekomi

„Wir haben uns bei BAD-Direkt einen Klapp-Spiegelschrank bestellt. Das Preis-Leistungsverhältnis ist wirklich super, die Lieferung hat problemlos funktioniert, nur die Lieferzeit von 2 Monaten …“

★★★★★ · ekomi

„Die Beratung war sehr gut. Wir wurden von Farbkombinationen überzeugt, die wir uns bisher nicht vorstellen konnten und haben dadurch die richtige Auswahl getroffen.“

★★★★★ · ekomi

„Eine sehr gute Beratung aus der die Erfahrung spricht. wir haben uns dann umentschieden und es sieht alles toll aus und passt sehr gut. die Qualität ist Top, auch die Verpackung.“

★★★★★ · ekomi

„Sehr gute individuelle Beratung, zuverlässiger Direkt-Versand vom Hersteller, ausgezeichnete Produkt-Qualität“

★★★★★ · ekomi

„Tolle Beratung, toller Service, tolle Produkte. Wir waren rundum zufrieden!“

★★★★★ · ekomi

„Badmöbel DIREKT ab Hersteller - absolut unerreicht in Preis Leistung.“

★★★★★ · Frank W. · google

„Wir sind extra von Köln angereist. Es hat sich für eine wirklich ausgesprochen gute Beratung gelohnt. Wir haben drei Badunterschränke ohne Waschbecken und drei große Spiegel mit Beleuchtung bestellt.“

★★★★★ · ekomi

„Ich war sehr zufrieden mit der Beratung, der Angebotserstellung und mit der Auftragsabwicklung.“

★★★★★ · ekomi

„Bestellung und Lieferung erfolgte schnell, zuverlässig.“

★★★★★ · ekomi

„Sehr gute Beratung Sehr gute Qualität Pünktliche Lieferung Alles bestens!“

★★★★★ · ekomi

„Top Preisleistung, wir sind sehr zufrieden mit den Badmöbel.“

★★★★★ · ekomi

„Gute Beratung, gute Produkte“

★★★★★ · ekomi

„Beratung und Lieferung waren perfekt. Schwierig war allerdings die Installation, da der lokale Sanitärmensch sich weigern wollte, fremde Möbel und Armaturen, die nicht über seinen Fachhandel kommen …“

★★★★★ · ekomi

„Wir waren rundum zufrieden - telefonische Beratung top, Änderungswünsche sofort berücksichtigt, verschiedene Kombinationen und Farben wurden kurzfristig anschaulich dargestellt und Empfehlungen …“

★★★★★ · ekomi

„sehr informative Website, super kompetente und freundliche Beratung am Telefon. Ich wurde umgehend zurückgerufen, obwohl wir aus Österreich sind.“

★★★★★ · ekomi

„Hat alles geklappt, gutes Produkt, Kundenfreundlich und speditiv.“

★★★★★ · ekomi

„Gute Service und Qualität, etwas lange Lieferzeit, war aber auch während der Urlaubszeit.“

★★★★★ · ekomi

„Sehr gute Beratung bei der Auswahl der Badmöbel unter Berücksichtigung der individuellen Badverhältnisse(z.B.“

★★★★★ · ekomi

„Fachliche Beratung sehr gut u. kompetent - Zugesagte Liefertermine wurden exakt eingehalten. Problematik bei unserer Anlieferung war, dass wir die beiden Waschtische zwar ausgepackt hatten lt.“

★★★★★ · ekomi

„Der weite Weg hat sich auf jeden Fall gelohnt. Ein wenig gestört hat es uns, dass Herr versucht hat, uns von seinem eigenen Geschmack zu überzeugen.“

★★★★★ · ekomi

„gute Beratung, zuverlässige Zustellung. Probleme bei der Montage mit dem lokalen Sanitärinstallateur. Er hat nur montiert, weil wir die Armatur über ihn bezogen haben.“

★★★★★ · ekomi

„Top Beratung Top Qualität Schnelle Lieferung Wir bedanken uns für Ihre Bad Möbel. Mit freundlichen Grüßen“

★★★★★ · ekomi

„Super Service, 100% zufrieden“

★★★★★ · ekomi

„Online Katalog ist sehr gut aufgemacht und ist hilfreich beim Zusammenstellen und Bestellung der Möbel. Lieferung kam schnell und sehr gut verpackt. Hierbei gab es keine Reklamationen.“

★★★★★ · ekomi

„Schnelle und Freundliche Beratung . Super Qualität!!!“

★★★★★ · ekomi

„Sehr gute Beratung, top Service, pünktliche und einwandfreie Lieferung. Sehr schönes Design,unübertroffen große Auswahl an Materialien/Farben, Spitzenqualität“

★★★★★ · ekomi

„Sehr gute und schnelle Beratung (über E-Mail), Lieferung einwandfrei, bestelltes Produkt ist hochwertig und sehr gut verarbeitet.“

★★★★★ · ekomi

„Lieferung und Ware pünktlich wie vereinbart geliefert. Super Service, sind vollumfänglich mit den Möbeln zufrieden. Preis Leistungsverhältnis stimmen vollkommen überein.“

★★★★★ · ekomi

„Korrekte Abwicklung, Abrechnung sowie termingerecht ausgeliefert“

★★★★★ · ekomi

„Mit freundlicher Hilfe war die Bestellung einfach und die Lieferung gut organisiert.Gerne wieder !!!!! MFG“

★★★★★ · ekomi

„Top Preis/Leistung!!! Unser Waschtisch 2 Meter wurde beschädigt geliefert. Dieser wurde sofort und ohne weitere Probleme ausgetauscht. Wir sind mit der Möbelqualität sehr zufrieden.“

★★★★★ · ekomi

„Sehr gute Qualität der Produkte, pünktliche Lieferung aus Italien. Das Ganze zu einem fairen Preis.“

★★★★★ · ekomi

„hat alles gut geklappt, gute Kommunikation.“

★★★★★ · ekomi

„super ware ,freundliche spedition“

★★★★★ · ekomi

„Von der Beratung bis zur Auslieferung bin ich sehr professionell bedient worden.“

★★★★★ · ekomi

„sehr gute bestellabwicklung sehr gutes preis/leistungs verhältnis super qualität und verarbeitung“

★★★★★ · ekomi

„Sehr netter Kontakt und auch das Produkt entsprach den Angaben. Als kleinen Wehrmutstropfen empfand ich die mir nicht mögliche Bestellung im Internet - ich habe es dann telefonisch erledigt.“

★★★★★ · ekomi

„Etwas eigenwillige, aber sehr gute Beratung. Lieferzeit wurde eingehalten. Die Leuchte über dem Spiegelschrank hat sich nach 2 Minuten ausgeschalten.“

★★★★★ · ekomi

„wir sind mit den Badmöbeln sehr zufrieden, Lieferung klappte hervorragend. mfg“

★★★★★ · ekomi

„Lieferung in der angekündigten KW durch italienische Spedition, die sich vorher mit einer deutschsprachigen Disponentin zur Ankündigung des Liefertermins telefonisch bei uns gemeldet hat.“

★★★★★ · ekomi

„Neben einer absolut fach- und sachgerechten Beratung erfolgte eine prompte, mängellose Lieferung wie bestellt.“

★★★★★ · ekomi

„Sehr schneller und direkter Kontakt mit einem kompetenten Ansprechpartner. In der Beratung bzw.“

★★★★★ · ekomi

„Nette Beratung, super Lieferservice, Qualität hervorragend, jederzeit wieder“

★★★★★ · ekomi

„Fachlich die beste Beratung die wir bisher erhalten haben. Lieferung termingenau. Spezialanbieter zur Ausstattung von schmalen Bädern, bisher nichts Besseres zu den gleichen Konditionen gefunden.“

★★★★★ · ekomi

„Sehr freundlich , gute Beratung , sehr zuvorkommend bei Reklamation. sehr empfehlenswert !!!!!!!!“

★★★★★ · ekomi

„Wir haben mit BadDirekt beste Erfahrungen gemacht. Wir fanden die Beratung sehr gut, der Preis/Leistun gsverhältnis war ausgezeichnet und die Ware wurde pünktlich geliefert.“

★★★★★ · ekomi

„Ware super, wie bestellt. Gut verpackt pünktlich geliefert Qualität hervorragend Gerne immer wieder.“

★★★★★ · ekomi

„Wir wurden sehr freundlich empfangen, die teilweise provokativ aber auch humorvoll gestellten Fragen waren für die Entscheidungsfindung sehr wichtig und gut.“

★★★★★ · ekomi

„ssehr sehr gute Beratung vor Ort. Preis - Leistung unschlagbar gut. Wirklich die beste Beratung nach doch sehr vielen Gesprächen mit Fachberatern in Mainz und Umgebung. Sehr professionelle Abwicklung.“

★★★★★ · ekomi

„Gute Qualität und Auswahl, seriöse Abwicklung“

★★★★★ · ekomi

„Sehr gute Beratung, prompte Lieferung und gute Qualität, genau wie im Shop angegeben.“

★★★★★ · ekomi

„Vom Konzept her sehr gute Beratung. Allerdings ist der Glaswaschtisch nicht ganz so kratzer-resistent wie versprochen. Feine Kalkrückstände verschwinden nur mit Essigreiniger ......“

★★★★★ · ekomi

„Normalerweise mache ich solche Bewertungen im Internet nicht aber in diesem Fall mache ich eine Ausnahme.“

★★★★★ · ekomi

„Ware und Abwicklung in Ordnung. Einen Punkt Abzug für zwei Sachen: - mangelhafte Aufbauanleitung (zu allgemein) - Spediteur sprach kein einziges Wort deutsch, was die Annahme der Ware schwierig …“

★★★★★ · ekomi

„Sehr guter Service, zuverlässige Lieferung. Gerne wieder!“

★★★★★ · ekomi

„Alles in allem sehr zu empfehlen. Kontaktaufnahme, Lieferzeit, Preis, Anlieferung, alles ok.“

★★★★★ · ekomi

„Perfekte Beratung, super Preis, hervorragende Qualität, pünktliche Lieferung. Haben einen Glaswaschtisch 2,45 m mit Badunterschränken gekauft, echt der Hammer.“

★★★★★ · ekomi

„Wir sind sehr zufrieden mit Bad Direkt, weil uns die Beratung überzeugt hat, die Lieferung zeitgerecht erfolgte und uns das farblich individuell ausgelegte Produkt sehr gut gefällt.“

★★★★★ · ekomi

„Alles funktionierte ohne Probleme. Alle Anfragen wurde Telefonisch und per Mail direkt beantwortet. Einzig mit den Angaben aller Maße überlässt man das Risiko ausschließlich dem Käufer.“

★★★★★ · ekomi

„Vor etwas mehr als einem Jahr haben wir unsere Badeinrichtung bei BAD-DIREKT gekauft.“

★★★★★ · ekomi

„Wurde schon weiter empfohlen...“

★★★★★ · ekomi

Navigator starten